Due to a request to the plans for my bench below is a build guide to make your own :) or if you NZ based bug me and I'll make one (or several) for you. Leonharthunt@gmail.com
So last faire I needed a bench I could sit on without fear of breaking it in armour (I weigh 100kg and my armour weights 36kg (with shield) so I built this bench tough and big enough for three fully armed fighters to sit on, but also so that it packs down small for easy transport.
The main build requirement I had was to make to from locally available wood without the requirement of too many tools. (I made this without plans, the plans below are my attempt at making plans, please let me know if anything in unclear)
FYI I am not a builder,cabinet maker - the last woodworking project I did was when I was 12 and failed to make a wooden box, so if I can make this "anyone" can
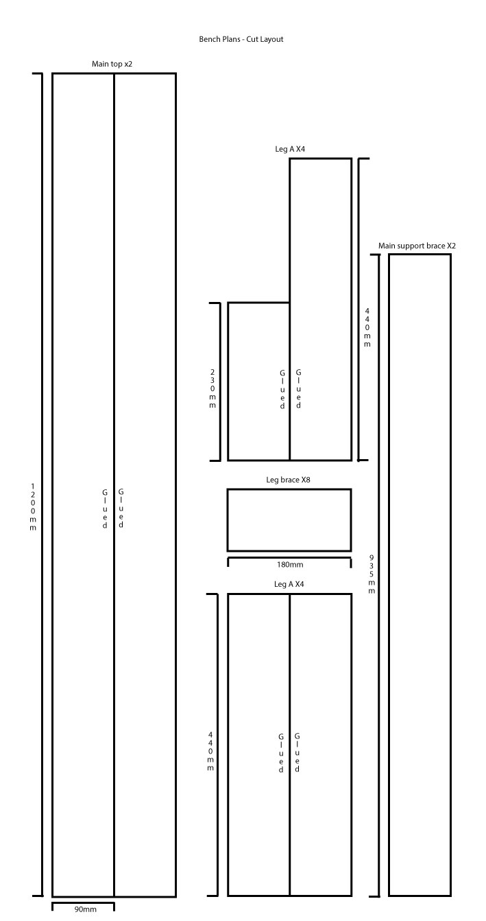
It is made from square dressed boards 90mm x 1.2 Example: Southern Pine Products Ltd SQUARE DRESSED BOARD 90mm X 1.2m (I did not use these, I used Knotty wood as sold by my local Miter 10, $4.60ea which look great but you need to check each pieces so that the knots dont impact the structural stability of the piece)
Materials List"
12x Pine board 90mm X 1.2m
6x Brass Hinge
36 x Brass Screw (for hinges)
Wood Glue (I use Selleys Durabond Polyurethane Glue for additional durability)
Wood stain (I use linseed oil)
Tools:
Saw or Circular/drop saw
x6 Adjustable clamps (to hold while glue sets)
Sandpaper (60, 80, 100, 120, 200, 300)
To the left is the bench plans cut list each piece needed to make the bench
(work in progress, assembly instructions being working on now)

No comments:
Post a Comment